Material de filtración de la piscina y equipamiento del local técnico
Nados a contracorriente
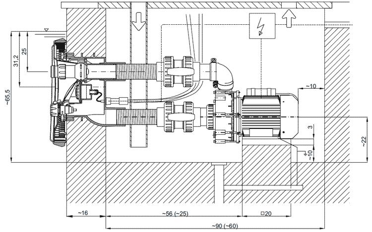
Nado a contracorriente Badu Jet Wave Monofásico oTrifásico Nado a contracorriente Badu Jet Wave Monofásico oTrifásico
Ref. Proveedor 46016
Equipo completo N.C.C BADU JET WAVE Trifásico
Se puede instalar en cualquier tipo de piscina privada de hormigón, poliéster o con liner.
El modelo Badu Jet Wave está equipado con una bomba Speck que libera un caudal de entre 54 y 58m3/h, una boquilla orientable en cualquier dirección y una regulación de aire.
Gracias al panel de control situado en la carátula frontal podrá controlar completamente el aparato sin necesidad de salir de la piscina.
Está disponible en modelo monofásico (230V) o trifásico (400V) con un foco LED blanco incorporado.
El nado a contracorriente Badu Jet Wave se entrega completo, incluye : la pieza para sellar, la caja de alojamiento, la boquilla, la bomba, los racores, las válvulas de conexión así como el armario eléctrico.
La agarradera de acero inoxidable y la manguera de masaje son opcionales.

YouTube condiciona la reproducción de sus videos al depósito de rastreadores para poder ofrecerle publicidad dirigida en función de su navegación.
Al hacer clic en "Autorizo" se depositarán los plotters y podrás ver el video. Tiene la opción de retirar su consentimiento en cualquier momento.
Para más información visite la política de cookies de YouTube
.
Características técnicas de los nados a contracorriente Badu Jet Wave
| Modelo | Wave 230V | Wave 400V |
| Nado a contracorriente | sumergido | sumergido |
| Boquilla | 40mm | 40mm |
| Boquiila | orientable | orientable |
| Caudal | 54m3/h | 58m3/h |
| Bomba | 4cv | 4,5cv |
| Alimentación eléctrica | 230V | 400V |
| Foco LED | blanco | blanco |

Manguera de masaje con pulsador
.jpg)
Garantía
2 años
Para el transporte, pida presupuesto.
Precio con IVA incluido.
Solicitud de presupuesto gratuito nado a contracorriente badu jet wave monofásico otrifásico
¿Desea recibir un presupuesto para el artículo? : Nado a contracorriente Badu Jet Wave Monofásico oTrifásico
A partir de 4325 eur IVA incluido.
Le rogamos complete correctamente el siguiente formulario. Su solicitud será tratada en breve por nuestro servicio comercial.
Llamada gratuita en España
De lunes a viernes, desde las 9h. hasta las 18h.
Solicitud de recambios
Busca un recambio para el artículo «Nado a contracorriente Badu Jet Wave Monofásico oTrifásico» ?
Haga Clic en el siguiente botón. Su solicitud será tratada en breve por nuestro servicio comercial.



.jpg)


.jpg)





